X

Sant’Egidio, tutto pronto per la messa in sicurezza di una nuova area da adibire a palestra

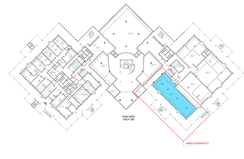
SANT’EGIDIO ALLA VIBRATA – Partiranno la prossima settimana, presso il Centro Esposizione e Congressi Val Vibrata di Via Archimede a S.Egidio i lavori di adeguamento funzionale e messa in sicurezza di una nuova area da adibire a palestra/spazio funzionale, per attività di gruppo.
L’ amministrazione comunale, aveva investito nel 2016, 400.000 euro per la delocalizzazione presso il Centro Fieristico della scuola secondaria di 1° grado ( ex scuola media), a seguito del terremoto che aveva reso inagibili alcuni edifici, condizionando i ragazzi a seguire le lezioni in orari pomeridiani.
Grazie ad un grande lavoro di squadra tra amministrazione, scuola, ufficio tecnico ditta esecutrice, in un mese, era stato consegnato alla cittadina un polo scolastico all’avanguardia, unico del suo genere sia dal punto tecnologico e soprattutto della sicurezza.
L’ulteriore investimento di 46.000 euro, è finalizzato a supportare i ragazzi nell’attività didattica.
La nuova palestra/spazio polifunzionale, di circa 275 mq, sarà ricavata dal locale posto al piano terra sul lato destro del Centro Fieristico, attualmente adibito a deposito di materiali e garantirà lo svolgimento di attività di educazione fisica, ludico motorie, laboratori musicali ed altre utili alla crescita dei ragazzi.
I lavori interesseranno il risanamento della copertura e delle pareti deteriorate dalle infiltrazioni, la realizzazione di tramezzature in cartongesso, quella di una pavimentazione in laminato, la modifica degli infissi, tinteggiatura e altri piccoli interventi atti a rendere utilizzabile l’ambiente in sicurezza.
“ Dopo aver scritto una pagina importante di questo Comune- afferma il sindaco Rando Angelini- con la consegna nel 2017, di un polo scolastico all’avanguardia, con questo ulteriore investimento, vogliamo riqualificare uno spazio che servirà a garantire tutte quelle attività didattiche di gruppo, utili alla crescita dei nostri ragazzi”.

Redazione: